![]() |
|||
![]() |
![]() |
||
|
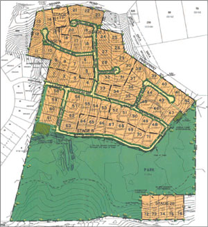
Beitz Lane Glasshouse Mountain Located in the Sunshine Coast Hinterland with direct views to the Glasshouse Mountains and surrounding National Parks. Glasshouse Mountains has excellent proximity to the Sunshine Coast and is linked to the Brisbane CBD by Brisbane City Train. Glasshouse Mountains has excellent local facilities such as shopping, primary school, sport clubs, bowls club, and National Parks. This 76 lot subdivision consists of half-acre allotments with over 17 hectares of parklands granted back to the community. The approved allotments have a northerly aspect generally and are gentle sloping. ![]() |
|||